Клиника новых технологий,
или на что способно государственно-частное партнерство


АКИpress подготовил материал о строящейся Больнице кыргызско-турецкой дружбы в Бишкеке. Этапы строительства, хроника событий и перспективы сферы здравоохранения в Кыргызстане — все это в нашем лонгриде.
15:36, 9 марта 201747747 20

Строительство современной Бишкекской больницы кыргызско-турецкой дружбы, полностью оснащенной высокотехнологичной аппаратурой, началось за счет гранта Турецкой Республики в июне 2016 года. Благодаря усилиям и поддержке президента Алмазбека Атамбаева проект реализуется и близится к завершению.

О цифрах

• 1 больница,
уникальная в своем роде,
по заявлению разработчиков, аналогов нет ни в одной стране центральноазиатского региона
• 3 надземных этажа,
а также цокольный этаж, который включит в себя современный морг, оснащенные лаборатории, склад, прачечную, кухню и проч.

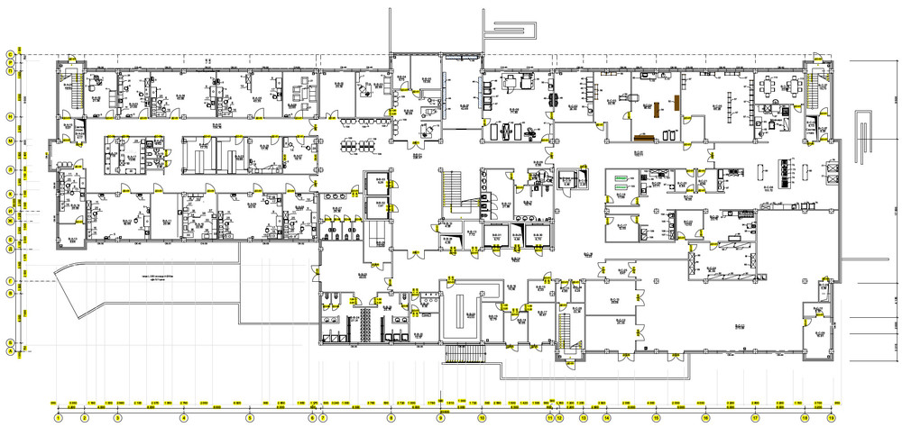
Цокольный этаж
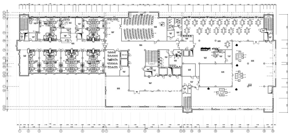
Первый этаж
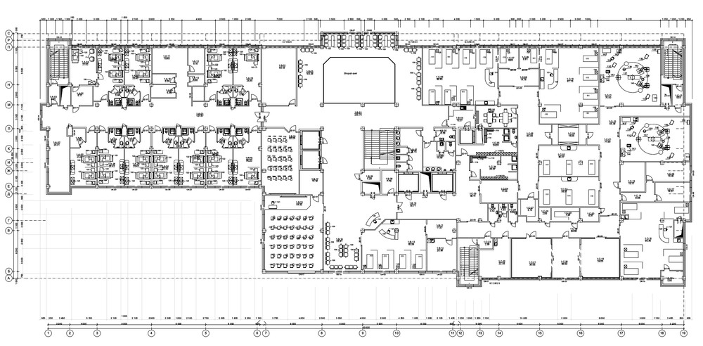
Второй этаж
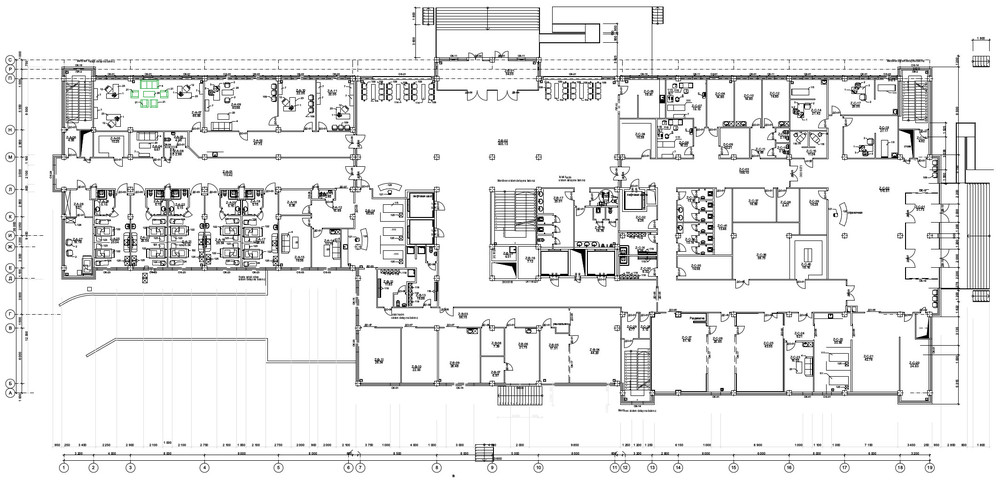
Третий этаж
1

4

Больница будет обладать мощностью от 100 и более коек, не считая коек при неотложных состояниях:

Палата с санузлом в строящейся больнице

Палата в современной больнице

На 2 человека будет рассчитана каждая палата. Палаты, в свою очередь, будут подразделяться на септические и асептические (стерильные палаты-изоляторы).

На 8 марта 2017 года грубые строительно-монтажные работы по строительству объекта на 100% закончены.

В больнице будут функционировать 2 генератора мощностью 1500 киловатт каждый, которые будут подключаться автоматически даже при небольшом изменении напряжения.

Во всем здании будет поддерживаться температура 23-25 градусов Цельсия благодаря системе климат-контроля: регулировать температуру воздуха в помещении можно будет как летом, так и зимой.

Более 100 врачей будут работать в больнице при общем кадровом потенциале более 600 сотрудников.

В течение 5 лет Турция готова оказывать методическую и практическую помощь, а также обучать местных специалистов на грантовой основе.

О главном

Развитые лабораторная система и операционные

Лаборатории будут расположены на цокольном этаже и связаны между собой. С помощью компьютерных программ и сети Интернет можно будет не только получать итоговые результаты исследований, но и передавать их непосредственно в операционные и реанимационные палаты.

Операционные — большие, оснащенные современной техникой залы, связанные с центральным пунктом. У операционных будет отдельная от остальных помещений воздушная система — ламинарная, при которой воздух перемещается слоями без перемешивания и пульсаций (то есть исключается риск попадания бактерий или вирусов извне).

Операционный зал площадью 100 кв.м в строящейся больнице

Операционный зал в современной больнице

Пневматическая почта

В больнице будет представлена пневмопочта, т.е. система перемещения штучных грузов — в данном случае для передачи анализов — под действием сжатого воздуха. Закрытые пассивные капсулы (контейнеры) будут перемещаться по системе трубопроводов, установленных по всей больнице.


Передача контейнера через трубопровод


Кухня — Столовая

Кухня будет расположена на цокольном этаже. Готовить будут по определенной системе с учетом потребностей каждого пациента. Общая столовая для пациентов и медперсонала будет располагаться на третьем этаже — еда будет доставляться посредством специально оборудованного лифта. Также планируется предусмотреть кафетерий для удобства ожидающих родственников пациентов.

Столовая для пациентов
Столовая для пациентов
Кухня
Кухня
1

4

Крыша

На крыше будут централизованно сосредоточены воздушная, электрическая и газовая системы и связываться с цокольным этажом. Все процессы будут тщательно контролироваться специалистами.

1

5

О важном

- в больнице будет возможность проводить операции самого широкого спектра, включая по пересадке почек;

- в больнице будет применяться ангиография — метод контрастного рентгенологического исследования кровеносных сосудов, который изучает функциональное состояние сосудов, окольного кровотока и протяженность патологического процесса.

Как это будет?

Подрядчик обещает сдать проект уже 31 августа 2017 года (через 176 дней).

1

4

Как это было?

Первые упоминания строительства больницы кыргызско-турецкой дружбы в Бишкеке были озвучены еще в декабре 2015 года по итогам кыргызско-турецкого сотрудничества в области здравоохранения.

Строительство современного клинико-диагностического центра предполагалось начать с 2016 года. Турецкая сторона должна была приступить к работам в качестве грантовой помощи Кыргызстану.

В марте 2016 года состоялась встреча министра здравоохранения Талантбека Батыралиева с делегацией Турецкого агентства по международному сотрудничеству ТИКА во главе с его программным координатором в Кыргызстане Эвреном Рутбилом.

В ходе переговоров глава делегации ТИКА отметил, что строительство нового клинико-диагностического центра в Бишкеке должно начаться сразу после подписания проектного соглашения о сотрудничестве между Минздравом КР, мэрией города Бишкека и ТИКА.

Турцией оказана грант-помощь Кыргызстану

Т.Батыралиев и делегация ТИКА

Т.Батыралиев и Али Озгюн Озтурк

22 марта Т.Батыралиев встретился с начальником Департамента проектов по Средней Азии и Кавказу ТИКА Али Озгюном Озтурком, чтобы обсудить реализацию проекта по строительству больницы.

Ожидалось, что турецкая сторона сразу после подписания соглашения по проекту приступит к проведению тендера и началу непосредственного строительства больницы.

Али Озгюн Озтурк озвучил тогда, что больница будет оснащена современным диагностическим и лечебным медицинским оборудованием в таких направлениях медицины, как кардиология, сердечно-сосудистая хирургия, интервенционная радиология и гастроэнтерология.

Церемония подписания проектного соглашения о сотрудничестве между Министерством здравоохранения Кыргызской Республики, мэрией города Бишкека и Турецким агентством по международному сотрудничеству ТИКА по строительству больницы кыргызско-турецкой дружбы прошла 1 апреля 2016 года.

Тогда же стало известно, что мэрия Бишкека выделила 36 млн сомов для реализации этого проекта.

«Этот проект является масштабным проектом в Кыргызстане и символом дружбы между нашими странами. Эта больница будет особенной, при ее строительстве будут применяться самые передовые технологии. Надеемся, что эта больница станет лучшей не только в Кыргызстане, но и среди стран СНГ».

Эврен Рутбил
1 апреля 2016 года, Бишкек

После подписания проекта соглашения по грантовому проекту строительства Бишкекской больницы кыргызско-турецкой дружбы Турецкое агентство предоставило эскизы здания будущей организации здравоохранения.

Эскиз №1

Эскиз №2

Этапы строительства

Официально строительство больницы началось 8 июня 2016 года. Обозначенные сроки ведения строительных работ — 450 дней.

Больница будет располагаться на базе Бишкекской городской клинической больницы №1 по улице Фучика. Изначально было заявлено, что больница будет рассчитана на 50 койко-мест, однако позже министр здравоохранения отметил, что больница будет «растягиваемой» по примеру западных медучреждений, и в ней будут размещены более 100 коек, не считая коек для неотложных состояний.

В июле Т.Батыралиев проинспектировал строительство больницы. Он осмотрел строительную площадку и ознакомился с проектом. Тогда он выразил надежду, что строительство оснащенной по мировым стандартам больницы поднимет уровень диагностики и лечения в Кыргызстане.

Еще один визит на стройплощадку министр здравоохранения нанес 5 сентября 2016 года. Прораб подчеркнул тогда, что строительно-монтажные работы, связанные с основной конструкцией, будут завершены еще до конца 2016 года, тогда как на 2017 год запланированы завершение отделочных работ и установка необходимого медицинского оборудования.




В ноябре 2016 года уже было завершено строительство первого этажа новой больницы кыргызско-турецкой дружбы. В целом, 21% строительных работ уже был окончен. Согласно сообщению Минздрава, рабочие от графика строительства не отставали.

В декабре 2016 года строительно-монтажные работы, связанные с основной конструкцией, находились на стадии завершения.

К концу января 2017 года стало известно, что строительство больницы кыргызско-турецкой дружбы уже было завершено на 60%. Глава компании-подрядчика Илхан Сонбай подчеркнул, что работы идут строго по графику.

1

7

В феврале 2017 года стало известно, что медицинский персонал будущей больницы кыргызско-турецкой дружбы пройдет курсы повышения квалификафии в Турции. Обучение будет проводиться на турецком языке в течение 6 месяцев. Для отбора медперсонала в Бишкек прибыла делегация в составе представителей Анкарской научно-исследовательской больницы и Анкарского научно-исследовательского госпиталя онкологии.

Первый этап собеседования конкурсантов для работы в строящейся Бишкекской больнице кыргызско-турецкой дружбы прошел 21-22 февраля. Всего по республике резюме подали около 170 человек. Турецкие эксперты предварительно отобрали и пригласили на собеседование 167 специалистов.

В феврале же стало известно, что после завершения строительства здание Бишкекской больницы кыргызско-турецкой дружбы будет передано на баланс Министерства здравоохранения.

Посол Турции в КР Метин Кылыч предположил, что новая больница сможет стать примером для подражания для других больниц Кыргызстана.

Турецкие делегаты приыбли в Бишкек для отбора персонала

Собеседование с местными специалистами

«Проект нацелен на одно — поделиться опытом. У других стран могут быть другие цели, но у Турции одна — довести систему здравоохранения Кыргызстана до высокого уровня», - отметил посол Турции М.Кылыч во время встречи с представителями Минздрава КР.

 «Хотелось бы называть эту больницу не просто больницей кыргызско-турецкой дружбы, а клиникой новых технологий. Чтобы в этой клинике было все необходимое, чтобы мы не перенаправляли [пациентов] из-за отсутствия каких-либо диагностических методов или лечения».

Талантбек Батыралиев
министр здравоохранения КР

Сюжеты
Зарегистрированные кандидаты в депутаты Жогорку Кенеша
30
Кандидаты в депутаты в 30 округах
31
Как создавался кыргызский сом?
Исчезновение Орхана Инанды
Похищение и убийство Айзады
Пресс-конференция С.Жээнбекова
Что произошло в Кой-Таше?
Убийство Айеркена Саимаити
Жестокая драка в Джале. Видео
Задержание Атамбаева. Все новости
Двойное убийство на Энильчеке
Лишение неприкосновенности Атамбаева
Беспорядки в Ороке
«Безопасный город»
Стадион «Сельмашевец». Грусть, печаль...
<
>

Здоровье
21-01-2026
20-01-2026
19-01-2026
17-01-2026
16-01-2026
15-01-2026
14-01-2026


×

Вход


Забыли пароль - восстановить

Нет аккаунта - создать

регистрация

Уже есть аккаунт? - войти

Восстановление

Уже есть аккаунт? - войти